5つの特徴
5
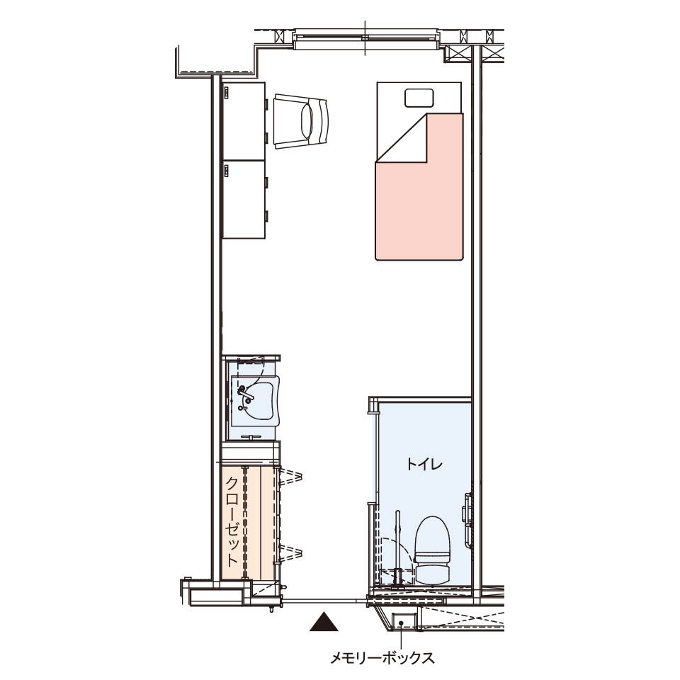
居室設備
日々お過ごしいただく居室の設備をご紹介します。テクノロジーを活用した設備等もございます。
お一人様タイプ
19.50㎡ 〜 19.71㎡
プライバシーと個性を尊重したプライベートな空間


お一人様タイプ(ラージ)
26.00㎡ 〜 29.32㎡
シャワーブースとミニキッチンがある少し広めの個室


お二人様タイプ
29.16㎡ 〜 63.75㎡
今まで通りご夫婦でお暮らしいただけるゆとりの空間


掲載の写真はモデルルームを撮影したものです。
備え付けのベッド、椅子、デスク、チェスト、エアコンは利用料に含まれておりますが、その他の家具、家電製品、調度品は利用料に含まれておりません。 図面と現況が異なる場合は、現況を優先いたします、
設備
-

メモリーBOX 思い出の品などを飾っていただけるメモリーボックスを各居室の入口付近に設置しています。
-

介護ベッド 安全・快適なパラマウント製の電動介護ベッドを採用しています。
-

緊急呼び出しボタン ベッドサイドには緊急呼出ボタンを設置。ボタンを押すだけで、いつでもスタッフと会話をすることができます。
-

トイレ 車いすでの出入りもラクラクできるように、トイレはゆとりある広さを設計しています。
-

クローゼット オールシーズンの衣類をまとめて収納できるクローゼットを設置しています。